ADUs
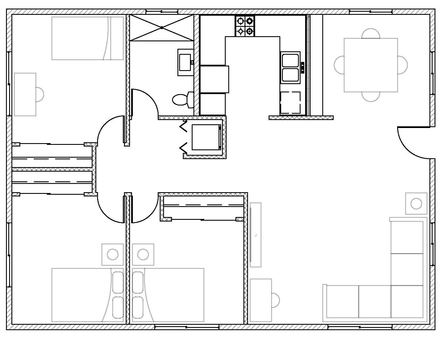
ADU Plan A – 1200
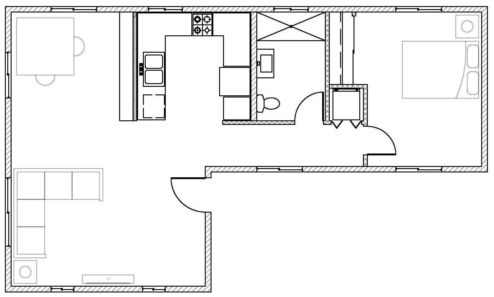
Our 1200 sq ft Accessory Dwelling Unit is designed for comfort, functionality, and modern living. With 3 bedrooms, 1 bath, and free professional design plans, it’s the perfect choice for families or multi-use spaces.
Key Features:
- 1200 Square Feet
- 3 Bedroom Layout
- 1 Full Bath
- Free Design Plans Included
Plan A - 1200 ADU Plans
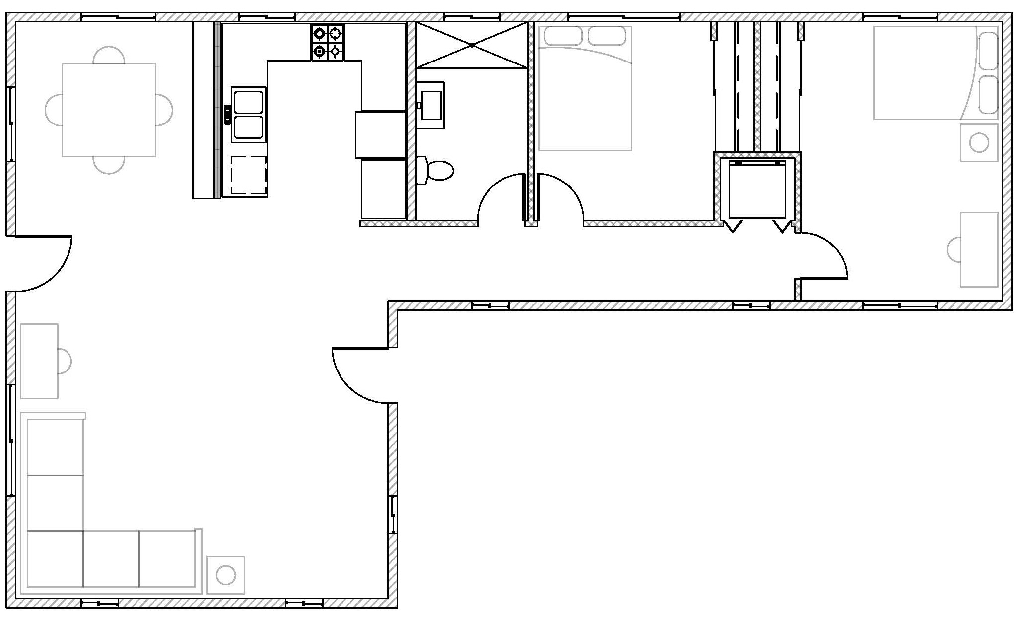
A spacious 1200 sq ft ADU featuring 3 bedrooms & 1 bath. San Diego Pre-approved ADU plans.ADU Plan B – 1200
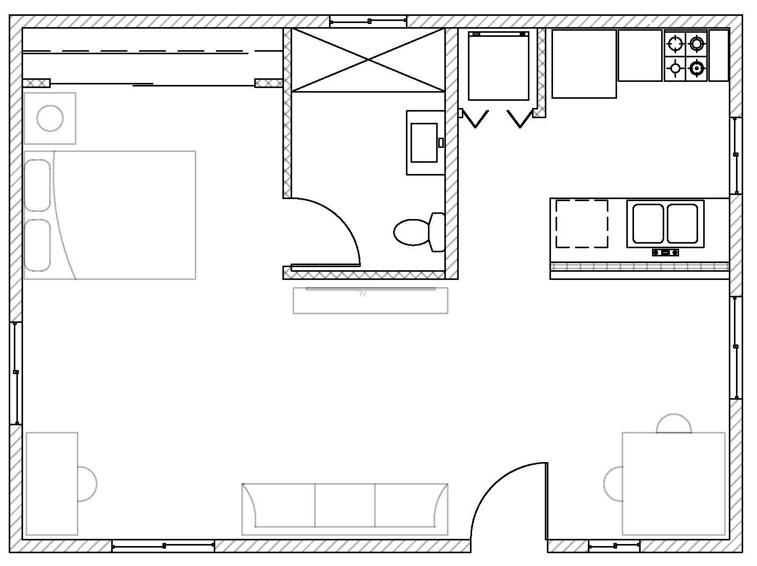
Our 1200 sq ft Accessory Dwelling Unit is designed for practical and stylish living. With 2 bedrooms, 1 bath, and free professional design plans, it’s ideal for couples, small families, or a versatile rental space.
Key Features:
- 1200 Square Feet
- 2 Bedroom Layout
- 1 Full Bath
- Free Design Plans Included
Plan B - 1200 ADU Plans
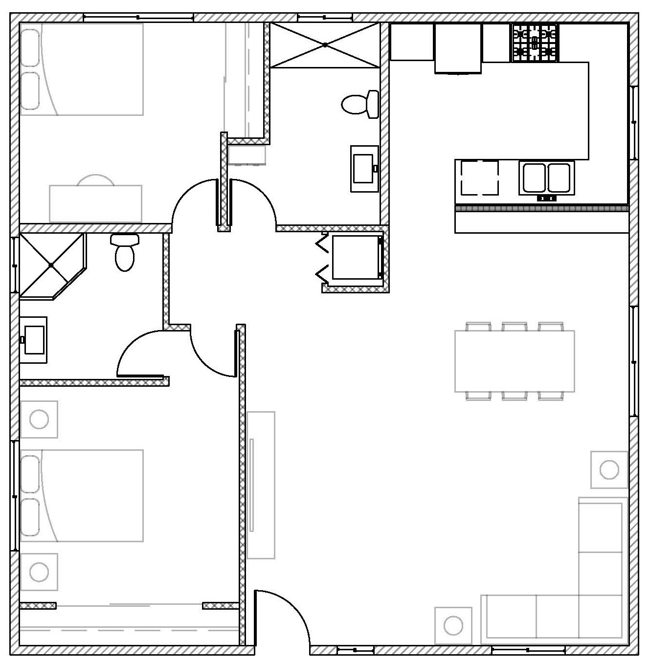
A 1200 sq ft ADU featuring 2 bedrooms & 1 bath. San Diego Pre-approved ADU plans.ADU Plan C – 1200
Our 1200 sq ft Accessory Dwelling Unit is designed for modern living with 2 bedrooms and 2 baths. Spacious and functional, this plan is ideal for small families or shared living setups, and includes free professional design plans.
Key Features:
- 1200 Square Feet
- 2 Bedroom Layout
- 2 Full Baths
- Free Design Plans Included
Plan C - 1200 ADU Plans
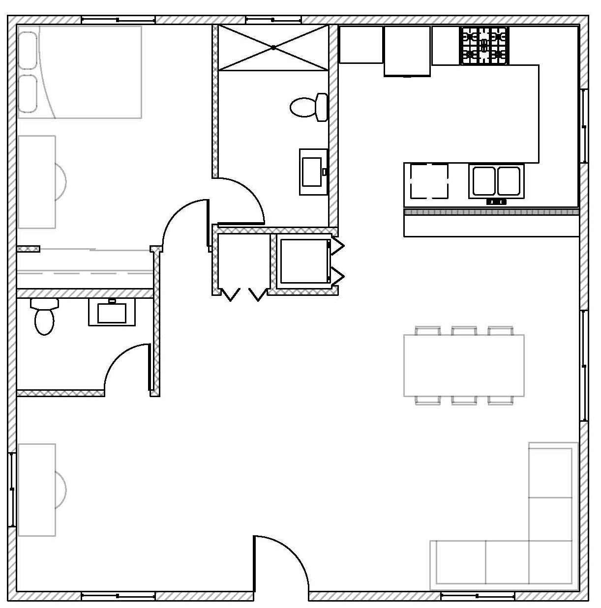
A modern 1200 sq ft ADU featuring 2 bedrooms & 2 baths. San Diego Pre-approved ADU plans.ADU Plan D – 1000
Our 1000 sq ft Accessory Dwelling Unit offers an efficient layout with 1 bedroom and 1.5 baths. Perfect for individuals or couples seeking extra space with a functional design, this plan also comes with free professional design plans.
Key Features:
- 1000 Square Feet
- 1 Bedroom Layout
- 1.5 Baths
- Free Design Plans Included
Plan D - 1000 ADU Plans
A modern 1000 sq ft ADU with 1 bedroom & 1.5 baths. San Diego Pre-approved ADU plans.ADU Plan E – 800
Our 800 sq ft Accessory Dwelling Unit provides a cozy yet functional layout with 1 bedroom and 1 bath. Ideal as a guest house, rental unit, or private retreat, this plan includes free professional design plans for a seamless build.
Key Features:
- 800 Square Feet
- 1 Bedroom Layout
- 1 Full Bath
- Free Design Plans Included
Plan E - 800 ADU Plans
An 800 sq ft ADU featuring 1 bedroom & 1 bath. San Diego Pre-approved ADU plans.ADU Plan F – 600
Our 600 sq ft Accessory Dwelling Unit is a compact and efficient design with 1 bedroom and 1 bath. Perfect for singles, couples, or a rental unit, this plan balances comfort with affordability and includes free professional design plans.
Key Features:
- 600 Square Feet
- 1 Bedroom Layout
- 1 Full Bath
- Free Design Plans Included
Plan F - 600 ADU Plans
A 600 sq ft ADU featuring 1 bedroom & 1 bath. San Diego Pre-approved ADU plans.SFD Plan G – 1728
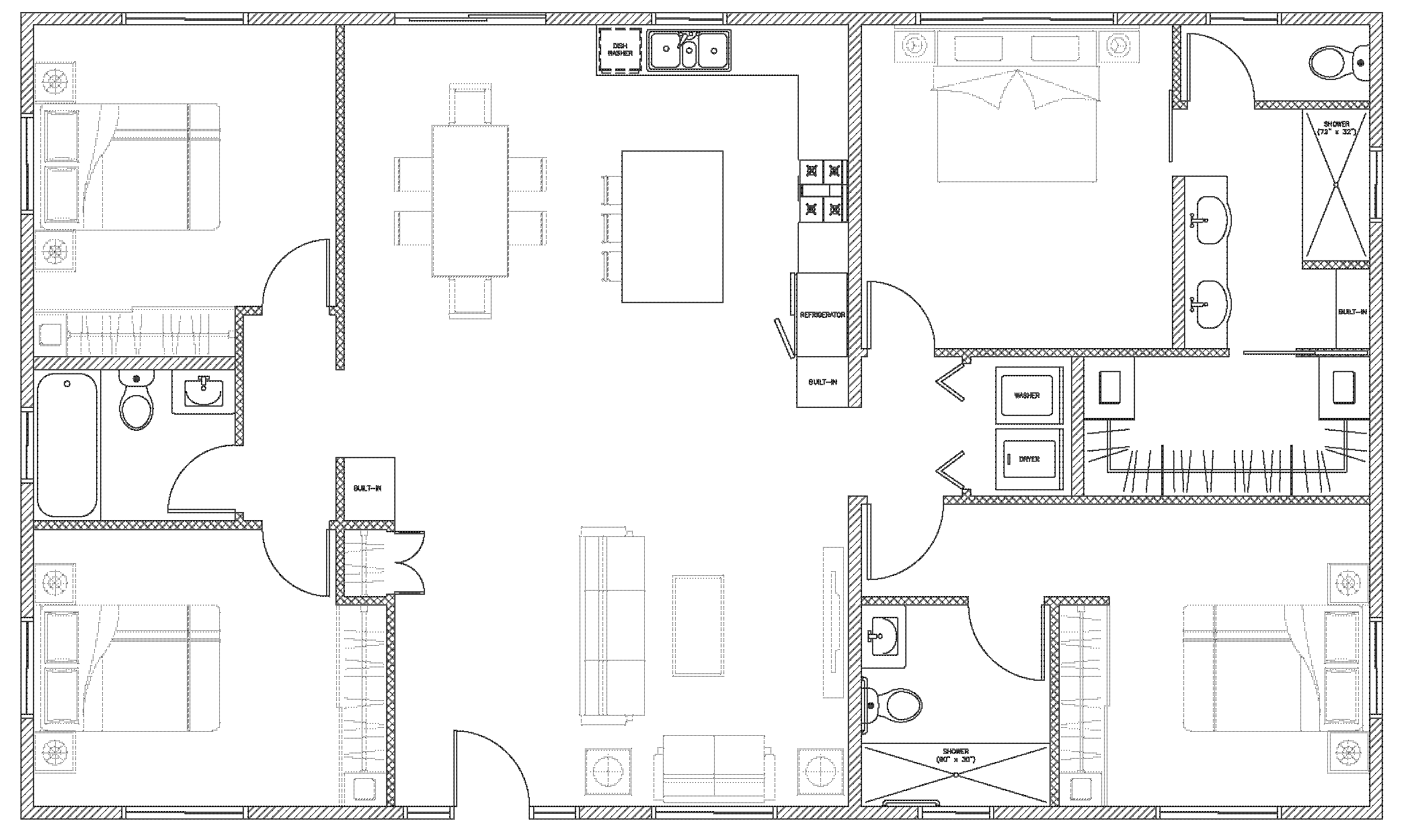
Our 1728 sq ft Single Family Dwelling plan features 4 bedrooms and 3 baths. With a spacious design perfect for families, this plan combines comfort, function, and style. Free professional design plans are included.
Key Features:
- 1728 Square Feet
- 4 Bedroom Layout
- 3 Full Baths
- Free Design Plans Included
Plan G - 1728 SFD Plans
A 1728 sq ft SFD featuring 4 bedrooms & 3 baths. San Diego Pre-approved SFD plans.SFD Plan H – 1500
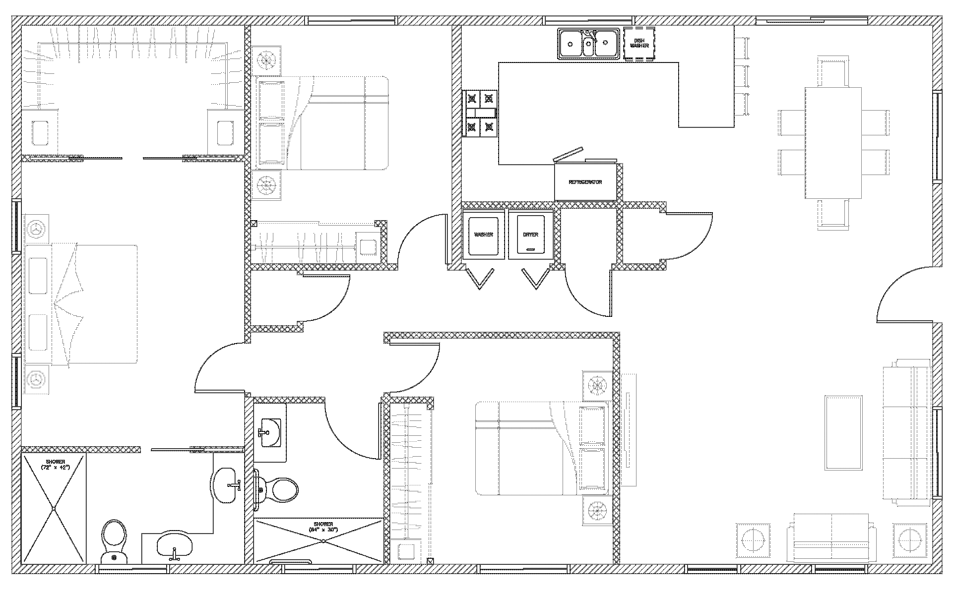
Our 1500 sq ft Single Family Dwelling plan includes 3 bedrooms and 2 baths. Designed with functionality and comfort in mind, this plan is perfect for families looking for a well-balanced home. Free professional design plans are included.
Key Features:
- 1500 Square Feet
- 3 Bedroom Layout
- 2 Full Baths
- Free Design Plans Included
Plan H - 1500 SFD Plans
A 1500 sq ft SFD featuring 3 bedrooms & 2 baths. San Diego Pre-approved SFD plans.How It Works
At JT & Bros Construction, we make the ADU building process simple and transparent. From the first conversation to the final inspection, we work closely with you to ensure your new space meets all your needs.
01 Planning
We kick off by understanding your vision and securing all necessary permits, zoning clearances, and approvals, so we’re ready to move forward.
02 Design
Choose from our pre-designed models or work with our expert team to create a custom ADU that’s functional, stylish, and optimized for your space and needs.
03 Pre Construction
Before construction begins, we finalize the details, review materials, and prepare the site for a seamless build process.
04 Start Working
With everything in place, we begin construction, focusing on quality craftsmanship at every step to bring your ADU to life.
Start Your Dream Project
With Us Today
Ready to transform your space? Whether you're planning a home remodel, adding an ADU, or tackling a commercial build, our team is here to make it happen. Click below to get in touch with us for a free consultation and let's bring your vision to life!
Get an Estimate Now












